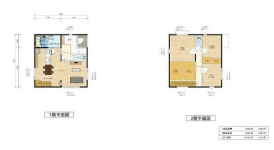
三島市富田町の新築戸建ての不動産情報


三島市の不動産|U2JAPAN株式会社 三島店(新築戸建て・中古住宅・売り土地・マンション) > U2JAPAN株式会社 三島店のスタッフブログ一覧 > 三島市の暮らしを楽しもう。三島市富田町の新築戸建てをご紹介



件
件
件
件



